Description
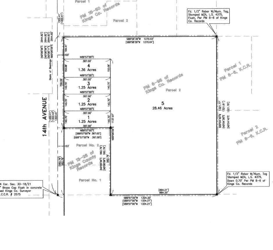
This lot is located on 14th Avenue, with the nearest cross street being West Lacey Boulevard. It is situated near various commercial and residential developments in Armona. The property is in a Mixed-Use District, primarily intended to support a blend of commercial and residential activities along 14th Avenue, north of the downtown area in Armona. Permitted uses include, but are not limited to: service and repair shops, food stores, grocery stores, photography studios, offices, business professional services, restaurants, cafs, fast-food establishments, and retail sales. For more details, please contact the listing broker for a copy of the Zoning Matrix for Kings County. The seller will remove trees if a mutually agreeable price is reached.
-
0BEDS
-
1.25ACRES
-
0BATHS
-
01/2 BATHS
School Ratings & Info
Description
This lot is located on 14th Avenue, with the nearest cross street being West Lacey Boulevard. It is situated near various commercial and residential developments in Armona. The property is in a Mixed-Use District, primarily intended to support a blend of commercial and residential activities along 14th Avenue, north of the downtown area in Armona. Permitted uses include, but are not limited to: service and repair shops, food stores, grocery stores, photography studios, offices, business professional services, restaurants, cafs, fast-food establishments, and retail sales. For more details, please contact the listing broker for a copy of the Zoning Matrix for Kings County. The seller will remove trees if a mutually agreeable price is reached.
© 2026 Tulare County Multiple Listing Service. All rights reserved. The data relating to real estate for sale or lease on this web site comes in part from TCMLS. IDX information is provided exclusively for consumers' personal, non-commercial use and may not be used for any purpose other than to identify prospective properties consumers may be interested in purchasing. Information is deemed reliable but is not guaranteed accurate by the MLS or The Jillian Bos Team | Independent Broker Network. Data last updated: 2026-01-17T20:16:18.853.
