Description
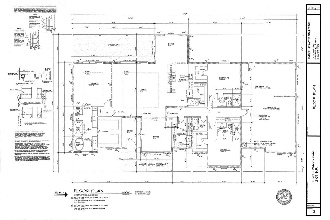
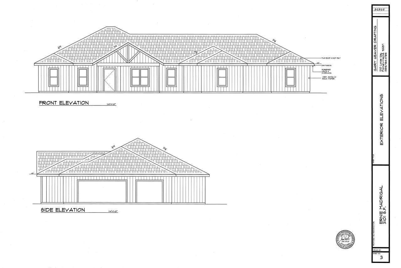
Construction is set to begin soon on this thoughtfully designed custom residence by Madrigal Prime Properties. Set on just over an acre with breathtaking foothill views, this 3,101 sq. ft. home blends modern comfort with timeless design. The spacious floor plan features 3 bedrooms, 3.5 bathrooms, and a private office, all centered around an open-concept living area that connects the kitchen, dining, and great room with ease. Enjoy seamless indoor-outdoor living with a covered patio and a future pool designed for entertaining or relaxing. Additional highlights include 10-ft ceilings, an indoor laundry room, and a finished garage. Construction beginning soon! Reach out for more details.
-
0BEDS
-
1.08ACRES
-
0BATHS
-
01/2 BATHS
School Ratings & Info
Description
Construction is set to begin soon on this thoughtfully designed custom residence by Madrigal Prime Properties. Set on just over an acre with breathtaking foothill views, this 3,101 sq. ft. home blends modern comfort with timeless design. The spacious floor plan features 3 bedrooms, 3.5 bathrooms, and a private office, all centered around an open-concept living area that connects the kitchen, dining, and great room with ease. Enjoy seamless indoor-outdoor living with a covered patio and a future pool designed for entertaining or relaxing. Additional highlights include 10-ft ceilings, an indoor laundry room, and a finished garage. Construction beginning soon! Reach out for more details.
© 2026 Tulare County Multiple Listing Service. All rights reserved. The data relating to real estate for sale or lease on this web site comes in part from TCMLS. IDX information is provided exclusively for consumers' personal, non-commercial use and may not be used for any purpose other than to identify prospective properties consumers may be interested in purchasing. Information is deemed reliable but is not guaranteed accurate by the MLS or The Jillian Bos Team | Independent Broker Network. Data last updated: 2026-03-14T12:16:20.007.
